¡Reforma este piso a tu gusto en pleno barrio de Nueva Numancia!
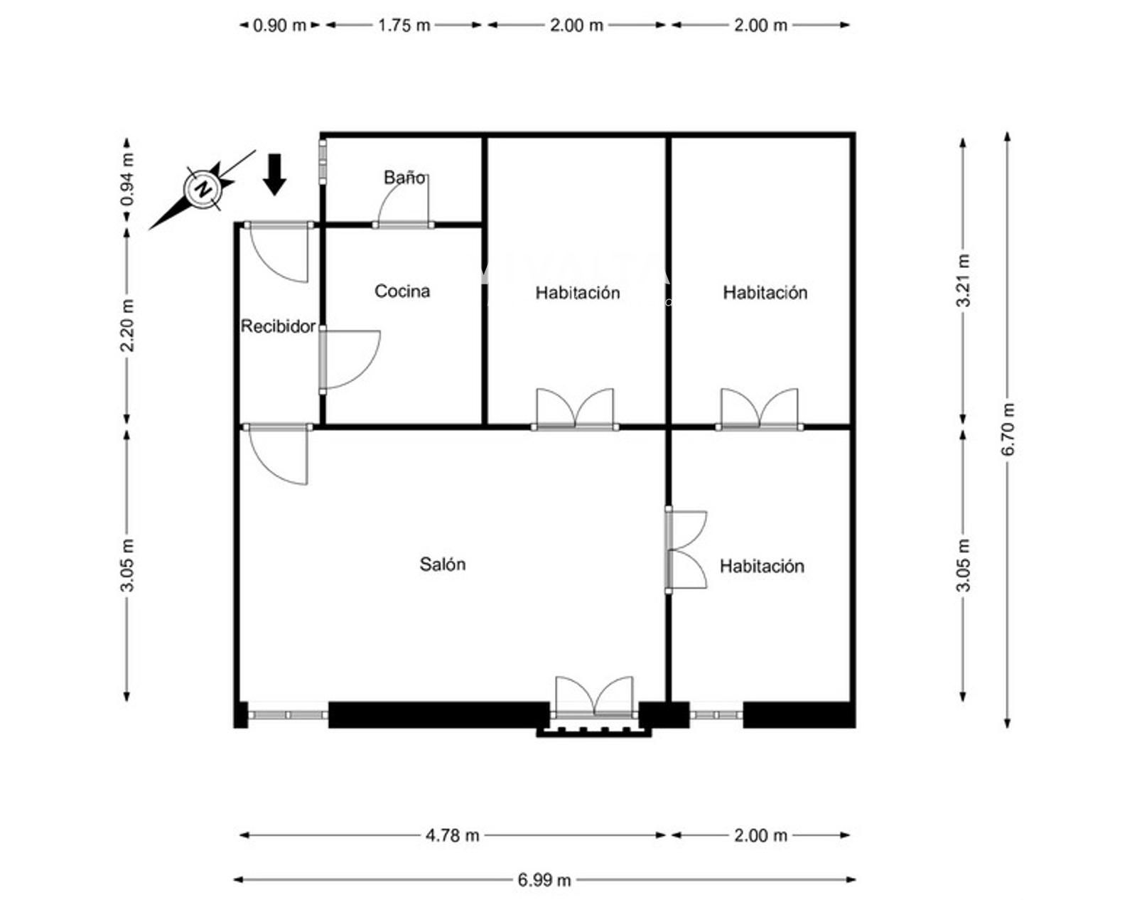
VIVALTA VENDE EN EXCLUSIVA este piso exterior en primera planta, situado en la calle Pico de Mulhacén, con una superficie de 51 m². Actualmente la vivienda se distribuye en tres habitaciones, salón con balcón, cocina y cuarto de baño. Es un piso muy luminoso, con salon y dormitorio exteriores, lo que garantiza una excelente entrada de luz natural durante todo el día.
El inmueble necesita una reforma completa, lo que lo convierte en una gran oportunidad para quienes deseen diseñar un hogar a su gusto. Gracias a su distribución, ofrece la posibilidad de transformarlo fácilmente en dos habitaciones amplias o incluso en una sola habitación tipo loft, ganando amplitud y confort.
La zona donde se encuentra es tranquila y está rodeada de todo tipo de servicios, como supermercados, tiendas de barrio, colegios, centros de salud, farmacias, bares y restaurantes. Además, cuenta con zonas verdes cercanas que aportan un entorno agradable y cómodo para el día a día.
En cuanto a las comunicaciones, el piso dispone de excelente conexión con el transporte público. A pocos minutos hay varias paradas de autobús que enlazan con las principales líneas de metro, facilitando el acceso rápido al centro de Madrid y a otros barrios. Por su parte, el acceso en vehículo privado es muy cómodo, con conexiones directas a importantes vías de comunicación que permiten desplazarse fácilmente tanto dentro como fuera de la ciudad.
En definitiva, este piso en la calle Pico de Mulhacén representa una magnífica oportunidad de inversión o primera vivienda, ideal para reformar y adaptar a las necesidades actuales. Su luminosidad, balcón exterior y versatilidad lo convierten en un inmueble con un gran potencial en una zona bien comunicada y con todos los servicios a mano.
Para visitar el inmueble o solicitar más información no dude en contactar con nosotros y estaremos encantados de acompañarles en este nuevo camino a su casa.
INFORMACION DEL EDIFICIO: 254 m² de parcela-Construido en 1930-Calidad de construcción sencilla-Edificio de 2 plantas-5 vecinos por planta-10 Viviendas-2 Comercios.
AVISO LEGAL: Según Real Decreto 515/1989 (de 21 de abril, relativa a la protección de los consumidores en cuanto a la información a suministrar en la compraventa y arrendamiento de viviendas), será puesta a disposición de los potenciales clientes en nuestras oficinas sin compromiso ninguno.
Los honorarios a percibir por la agencia son del 4% (Cuatro por ciento) + I. V. A. a cargo del COMPRADOR o 4.000 € + I. V. A en inmuebles inferiores a 100.000 €.