VIVALTA INMOBILIARIA VENDE EN EXCLUSIVA estupendo piso situado en Francisco Fatou, en el barrio de Villa de Vallecas. Una zona tranquila y bien comunicada.
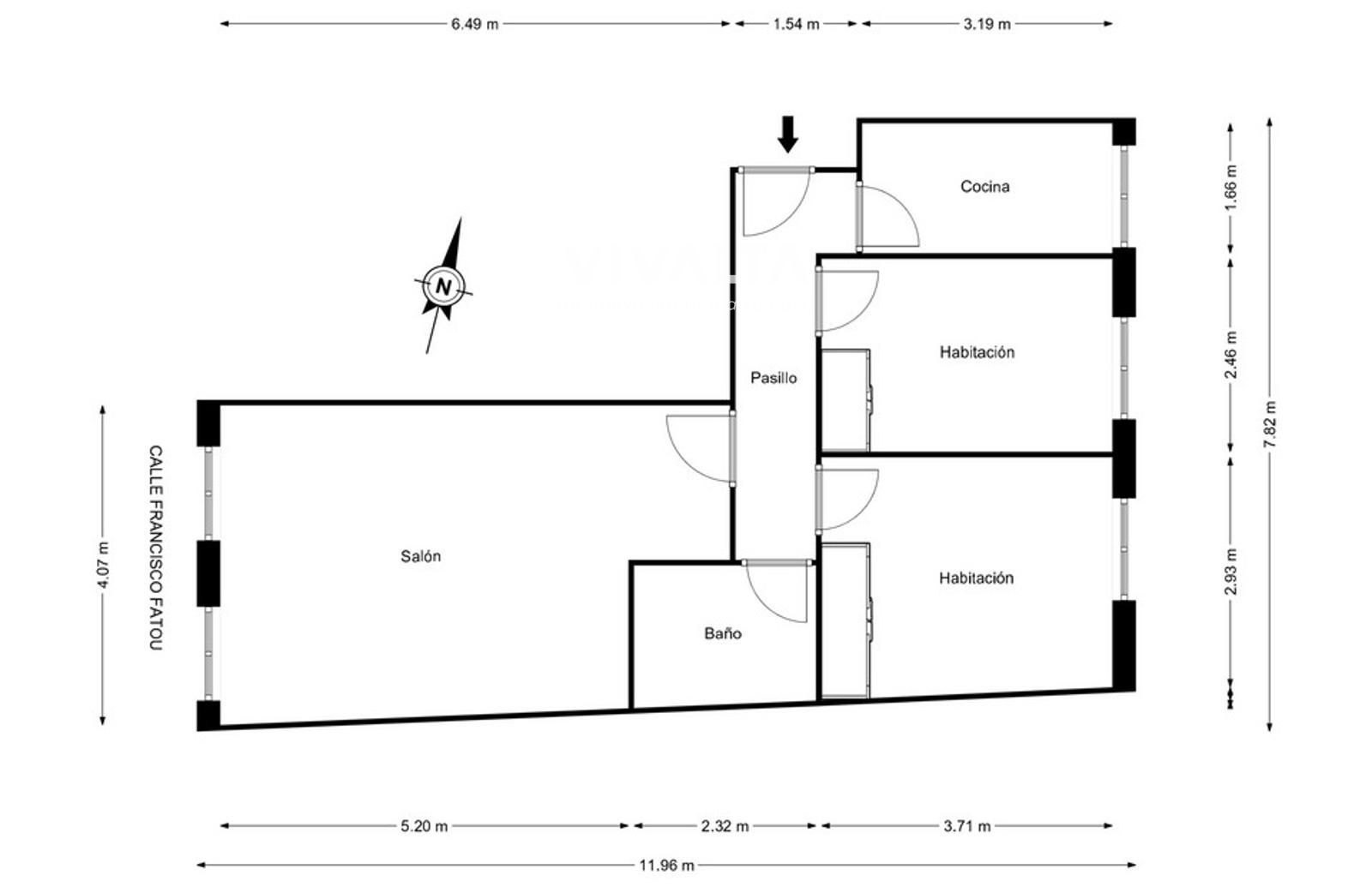
La vivienda cuenta con 89 m² construidos, distribuidos de forma cómoda y funcional.
Dispone de 2 amplias habitaciones, ideales tanto para una familia como para pareja o inversión, un salón luminoso con espacio para zona de estar y comedor, cocina independiente y baño completo.
Además, la propiedad incluye trastero, perfecto para almacenaje adicional.
La vivienda se encuentra en un entorno con todos los servicios a mano: transporte público, comercios, colegios y zonas verdes, lo que la convierte en una excelente oportunidad para vivir o invertir en una de las áreas con mayor proyección de Madrid.
Información del edificio: 302 m² de parcela-Construido en 2007-Calidad de construcción normal-Edificio de 3 plantas-Ascensor-Trastero-8 Viviendas
AVISO LEGAL: Según Real Decreto 515/1989 (de 21 de abril, relativa a la protección de los consumidores en cuanto a la información a suministrar en la compraventa y arrendamiento de viviendas), será puesta a disposición de los potenciales clientes en nuestras oficinas sin compromiso ninguno.
Los honorarios a percibir por la agencia son del 4% (Cuatro por ciento) + 21% I. V. A. a cargo del COMPRADOR o 4.000 € + 21% I. V. A en inmuebles inferiores a 100.000 €.